Birkenhead Park, grade II
This was the first publicly funded park in the world. It was designed and laid out by Sir Joseph Paxton (of 1851 Great Exhibition fame....which was really designed by the structural engineer Sir Charles Fox). The Park was also the template on which Central Park, New York is based.
The Project
£1.5m HLF restoration project concentrating on three structures:
- The Swiss Bridge (by Paxton)
- The Roman Boathouse
- And the Grand Entrance Lodge, consisting of two dwellings either side of the magnificent triumphal arch
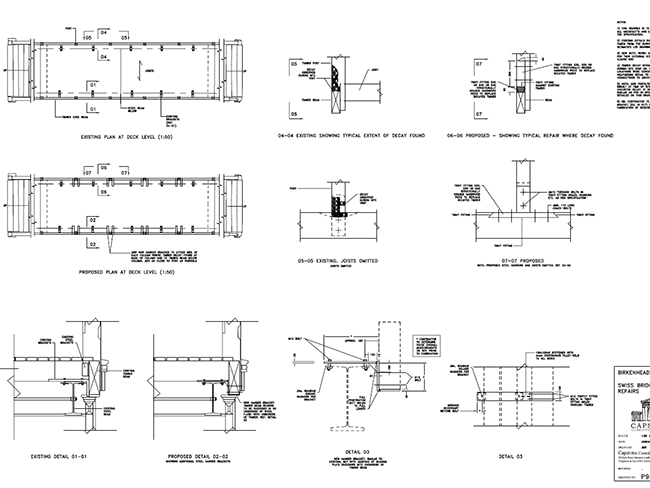
Capstone planned and executed a number of investigative surveys of these structures, which were in a very poor condition. This included a survey of the Roman boathouse and bridge from a boat on the lake. Proposals were worked up and agreed in principle with the client and architect, and detailed design work included:
Swiss Bridge
Full refurbishment of the Swiss Bridge. This involved draining down the lake for safe access, and fully 'cocooning' the bridge and scaffold within a 'vandal proof' box. Once I was able to open up the structure, disappointingly I found little remained of Paxton's fabric. Original timber trusses had been replaced by hidden steel beams. These past interventions themselves were in a poor state. I found many sections of decayed timber needed to be replaced, and that the heavily scoured abutments needed to be underpinned with a reinforced concrete pinning and anti scour skirt solution.
Roman Boat House
Repair and reconstruction of the Roman Boat house, reintroducing the pyramidal roof it once had. My brief for this included a proviso that there was to be no horizontal ties to the roof structure, so they could not be 'misused'. Ties of course stop outward spread. So in this instance I design and detailed a robust timber and steel composite ring beam around the structure at eaves level, to hold the roof in place. A solution that worked well.
Grand Entrance Lodge
The Grand Entrance Lodge work involved a careful assessment of embedded iron related movement, and detailed design for the strengthening and repair of decayed sections of roofs and upper floor structures.
Client - Wirral MBC
Architect - Lloyd Evans Pritchard
Contractor - William Anelay

.jpg)
.jpg)
.jpg)
.jpg)
.jpg)
.jpg)
.jpg)
.jpg)
.jpg)
.jpg)