Piece Hall, Halifax, grade I
This unique gem of the north was built as a marketplace specifically for the trade of wool for the handloom weavers of the district. Completed in 1779, it houses 300 separate rooms across three stories around an expansive central square.
Together with the adjacent square church spire and the Square Chapel (a redundant Methodist chapel saved from the brink, now an arts/performance venue), a visit to appreciate this ensemble of buildings is highly recommended.
The project
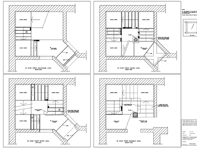
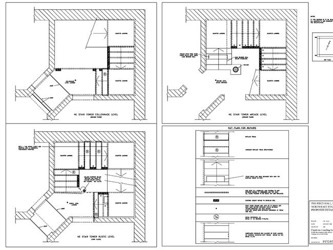
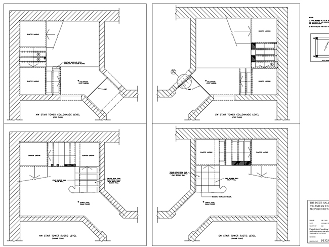
A scheme of assessment and repair work, incorporating the six Georgian stone cantilevered stair cases. Working with the project architect, these staircases were assessed.
The engineering challenges
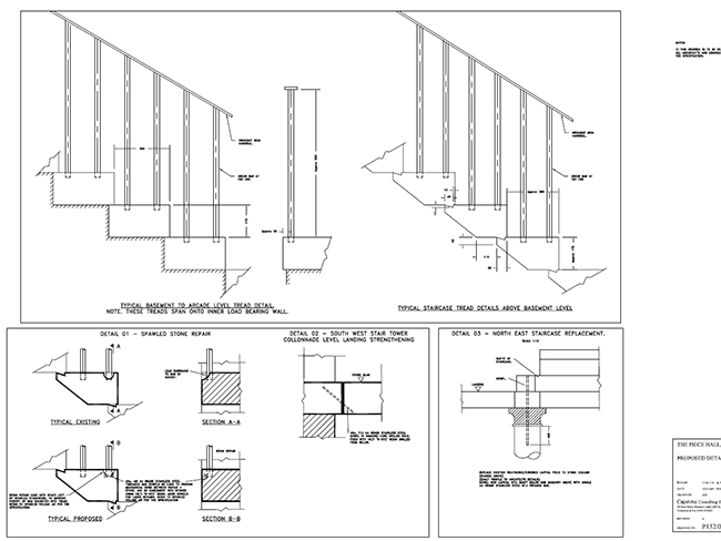
Cantilevered stone staircases were fist employed in this country in around 1630, with Indigo Jones' staircase at Queen's House, Greenwich often cited as the first. Only in recent decades has their true structural nature come to be fully understood, and of course we all know now that their stability seldom comes from cantilever action, but each individual tread relying on the one above and below via their abutting joints.
Capstone found a number of individual treads at the Piece Hall had become fractured and distressed, some to the point of becoming dangerous. Also my assessment uncovered a number of unsympathetic repairs that needed addressing.
The solutions
Following a detailed analysis and assessment of repair options, the decision was made to replace individual treads with new where necessary. Capstone devised a sequence of operations and temporary support to allow this to be done, carefully ensuring the remaining stair was supported until the new tread was inserted, and the mortared abutting joints had gained strength.
A key aspect of the success of this work was having a conservation stone mason contractor on board who had the skill to undertake this delicate work.
Client - Calderdale Council
Architect - Geoff Holland, AABC

.jpg)
.jpg)
.jpg)
.jpg)
.jpg)
.jpg)
.jpg)
.jpg)
.jpg)