Chapel FM, RICS Community Benefit Award
Chapel FM in East Leeds is all about 'creativity with purpose'. It is a radio station and arts venue for the local community. It needed a new home and the tired Methodist chapel was in need of a new vibrant use.
The project
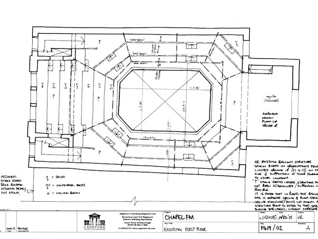
Conversion of this tired and run down traditional 1874 Methodist chapel into a vibrant arts hub, including recording studios, radio station and performance venue for live broadcasts. Work included detailed structural repairs, strengthening of the roof trusses for the new air conditioning plant, insertion of a new first floor stage infill to the balcony, new lift, ramps and other access improvements.
The engineering challenges
The main challenge was what we managed not to do. We managed not to have to introduce a new steel frame to carry the new infill structure at balcony level, but to instead show that the slender cast iron columns had the capacity to take the additional load. Our of four firms interviewed for the job, we were the only consultants that offered to do this, and won the job as a result.
The solutions
John studied the development of cast and wrought iron structures for his Conservation MA thesis back in 1998-9, and has since been able to put his knowledge in this area into practice on a number of historic structures. It was a joy to be able to put this expertise to work here, as the benefit to the client and project was so great. We fully assessed the columns, and were able to calculate they were able to carry the additional infill stage floor loading.
The timber balcony itself was another interesting challenge. In order to adapt the balcony for disabled access, we had to first understand it. We specified opening up work and were able to gain a detailed understanding of the intricate hidden timber framework, allowing us to draw out straightforward alterations for the contractor to follow through with on site.
Many thanks to Heads Together/Chapel FM for the use of photographs.
Role - Consulting Structural and Civil Engineering
Client - Heads Together

.jpg)
.jpg)
.jpg)
.jpg)
.jpg)
.jpg)
.jpg)
.jpg)
.jpg)