Domestic Extensions and Alterations
Extending your home is a great alternative to the upheaval of moving. Capstone regularly works on home extension and alteration projects, either providing structural drawings and specifications for your builder, working with your architect/architectural technician, or providing the whole service as the 'sole consultant'.
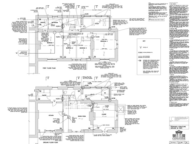
Work ranges from transforming a separate dining room & kitchen into an open plan living area, to major alterations and extensions, including basement conversions, loft conversions and rear extensions.
Work typically includes:
- An initial site visit to assess the building and your needs.
- Planning Application submission, or advice on 'permitted development'.
- Meeting the Building Regulation requirements (structural safety, thermal insulation, drainage, rules on staircases, glazing etc).
- If the building is listed, obtaining Listed Building Consent and meeting any Listed Building Conditions such as providing a detailed method statement as to how the work will be carried out, or how existing parts of the building will be protected and retained.
- Working up a clear set of 'existing' and 'proposed' drawings, and a specification for material construction quality.
- Providing a 'tender package' of information and obtaining competitive prices from suitable builders.
- Administering the building contract on your behalf, checking builder's invoices are appropriate, visiting site regularly to view the work in progress etc.

.jpg)
.jpg)
.jpg)
.jpg)
.jpg)
.jpg)
.jpg)
.jpg)
.jpg)
.jpg)
.jpg)
.jpg)