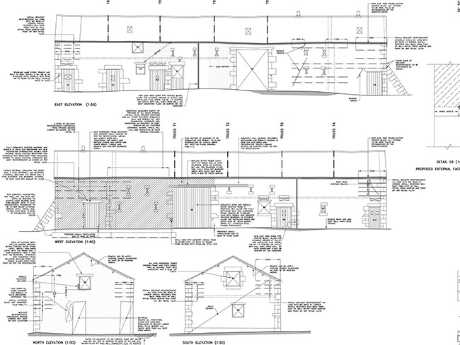
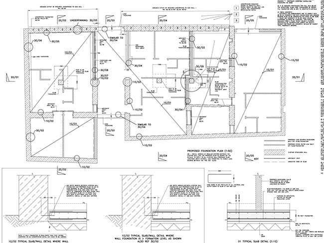
Conversions
A key means of securing a historic building's future is to ensure it has a use. We have a lot of expertise in the conversion of historic buildings into domestic homes. This includes buildings in a very poor structural condition, sometimes close to collapse. Our approach of using the new structure to help knit the older fabric together too, means that far less rebuilding is needed, which is good for historic buildings, can be a key factor in achieving planning and listed building consents, as well as reducing costs.
The photos show a selection of different properties we have helped convert to residential.

.jpg)
.jpg)
.jpg)
.jpg)
.jpg)
.jpg)
.jpg)
.jpg)
.jpg)
.jpg)
.jpg)
.jpg)
.jpg)
.jpg)